沖縄県 名護市沖縄県名護市大東三丁目 2480番地、2479番地1、2468番地
🚉てだこ浦西 徒歩721分
売却基準価額 (裁判所評価額)
346万円
てだこ浦西 徒歩721分(46.1 km)
浦添前田 徒歩727分(46.5 km)
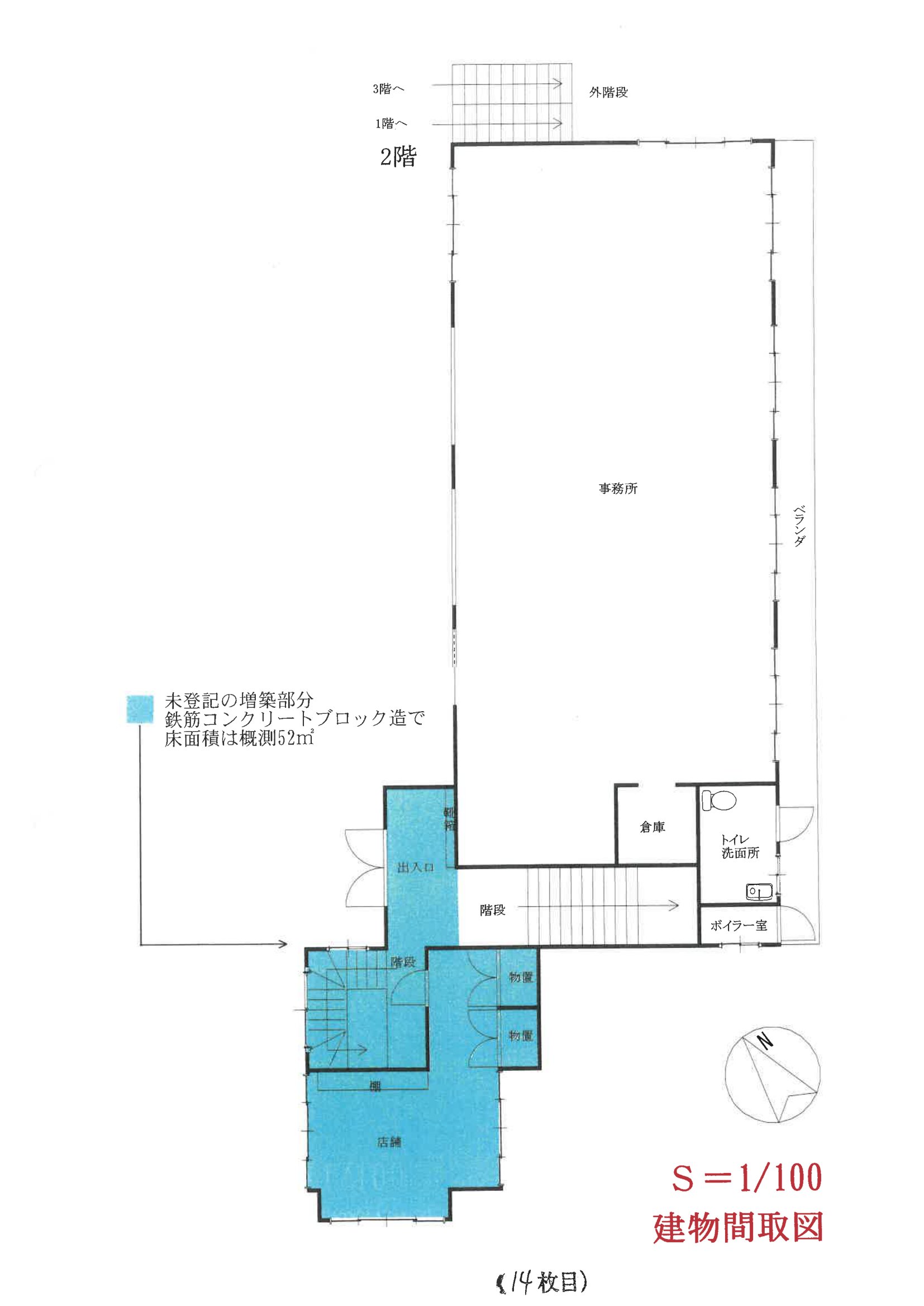
物件の概況
| contact_url | https://www.bit.courts.go.jp/info/info_36811.html |
|---|---|
| 入札期間 | 令和08年05月07日 〜 令和08年05月14日 |
| 開札期日 | 令和08年05月20日 |
| 公示開始日 | 令和08年04月14日 |
| 閲覧開始日 | 令和08年04月14日 |
🤖 AI 総合分析レポート
機能アップデート中
機能は現在開発中です。
次期バージョンでアップデートされる予定です。



















