売却基準価額 (裁判所評価額)
349万円
関東鉄道竜ヶ崎線 / 竜ヶ崎 徒歩43分(2.7 km)
関東鉄道竜ヶ崎線 / 入地 徒歩78分(5.0 km)
入札締切
入札終了
2026年04月16日
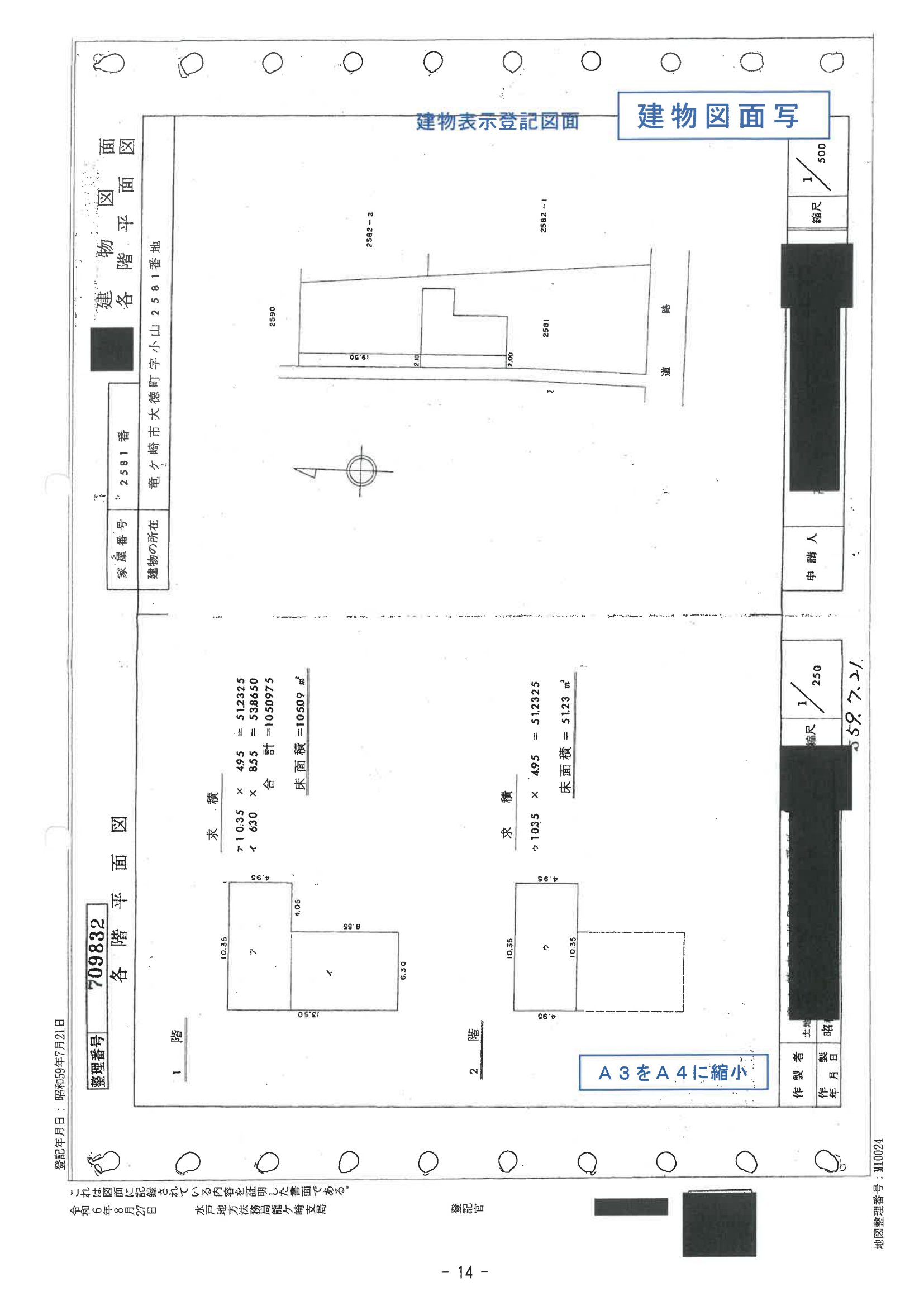
物件の概況
| contact_url | https://www.bit.courts.go.jp/info/info_31543.html |
|---|---|
| 売却基準価額 | 3,490,000円 |
| 買受可能価額 | 2,792,000円 |
| 買受申出保証金 | 698,000円 |
競売物件詳細
🤖 AI 総合分析レポート
機能アップデート中
機能は現在開発中です。
次期バージョンでアップデートされる予定です。



















