売却基準価額 (裁判所評価額)
1,765万円
阪急箕面線 / 牧落 徒歩7分(0.4 km)
阪急箕面線 / 桜井 徒歩11分(0.6 km)
入札締切
あと18日
2026年05月07日
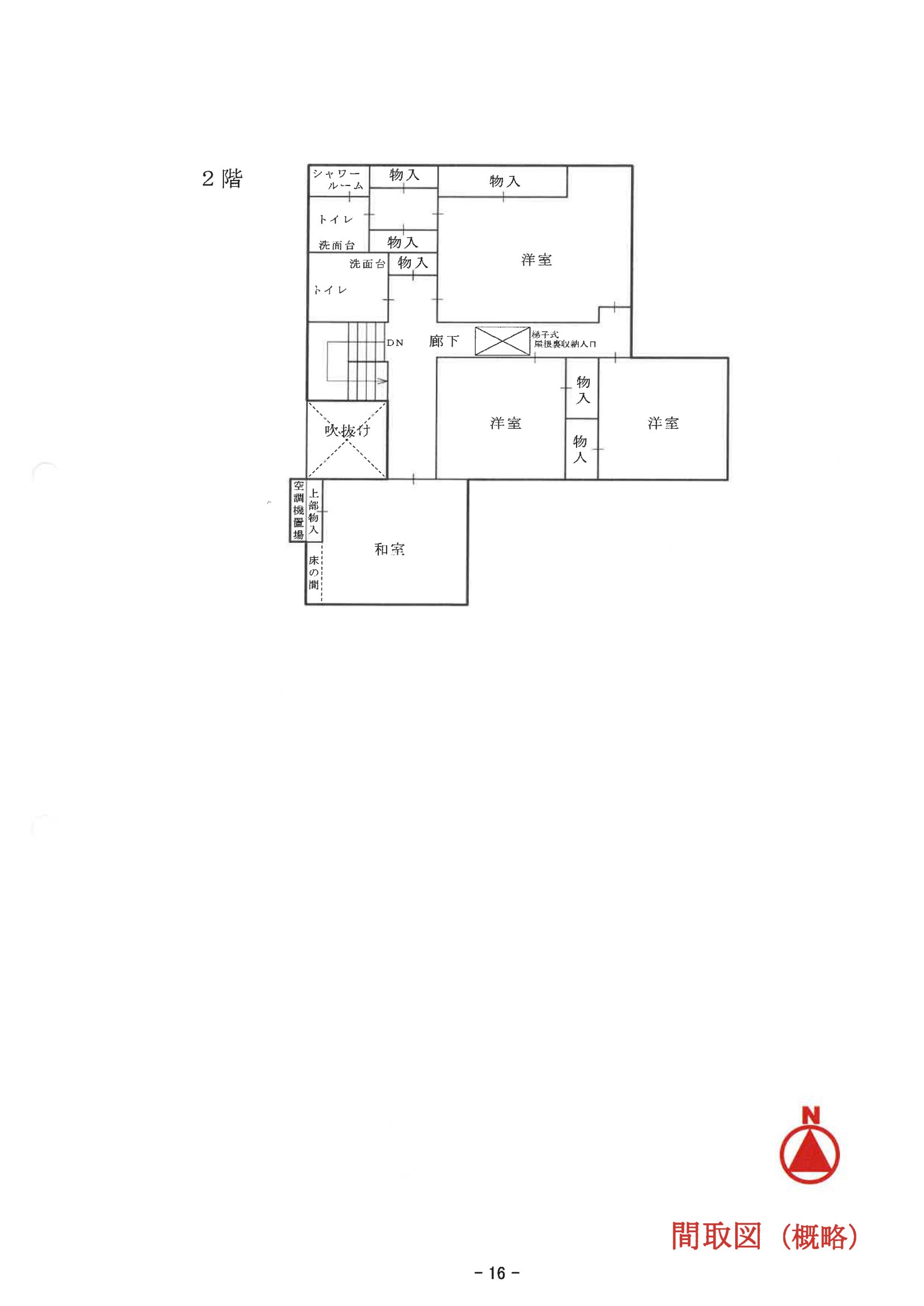
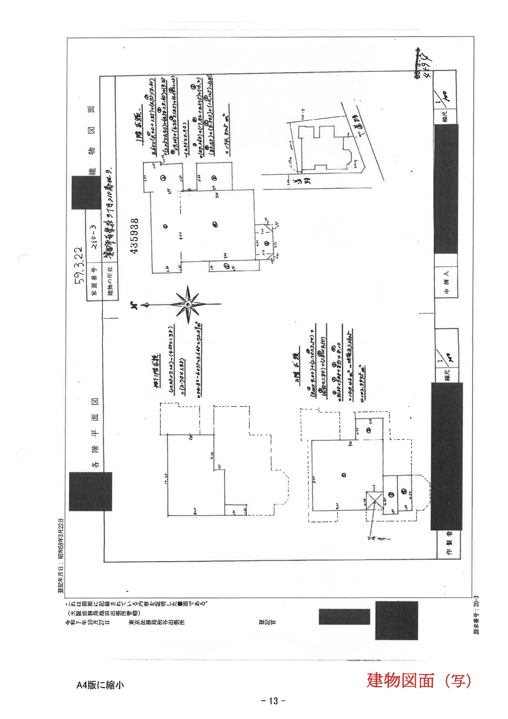
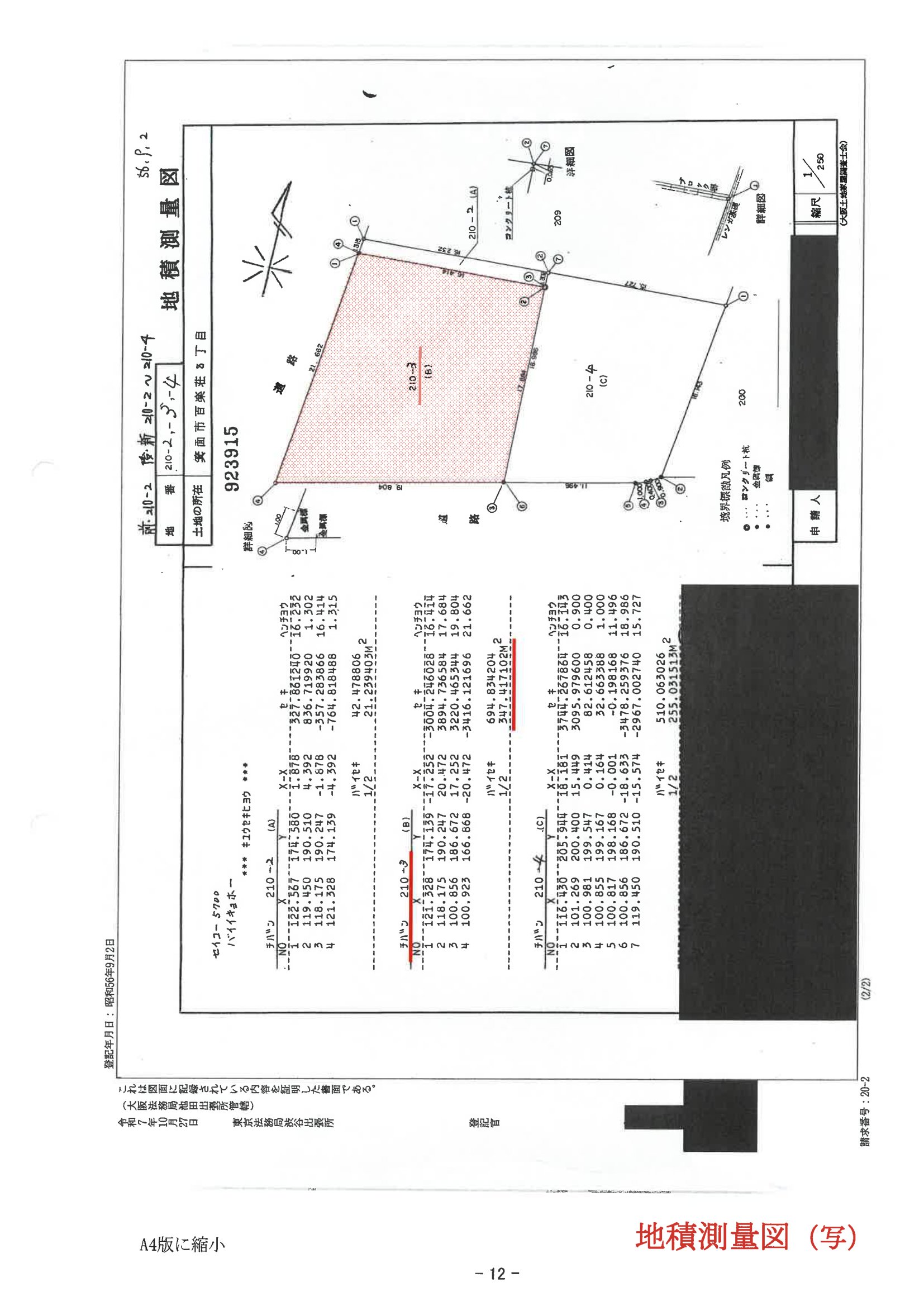
物件の概況
| contact_url | https://www.bit.courts.go.jp/info/info_33111.html |
|---|---|
| 入札期間 | 令和08年04月24日 〜 令和08年05月07日 |
| 開札期日 | 令和08年05月13日 |
| 公示開始日 | 令和08年04月10日 |
| 閲覧開始日 |
🤖 AI 総合分析レポート
機能アップデート中
機能は現在開発中です。
次期バージョンでアップデートされる予定です。




















