静岡県 伊東市静岡県伊東市宇佐美字仲山 3242番地236
🚉宇佐美 徒歩13分
売却基準価額 (裁判所評価額)
1万円
宇佐美 徒歩13分(0.8 km)
網代 徒歩60分(3.8 km)
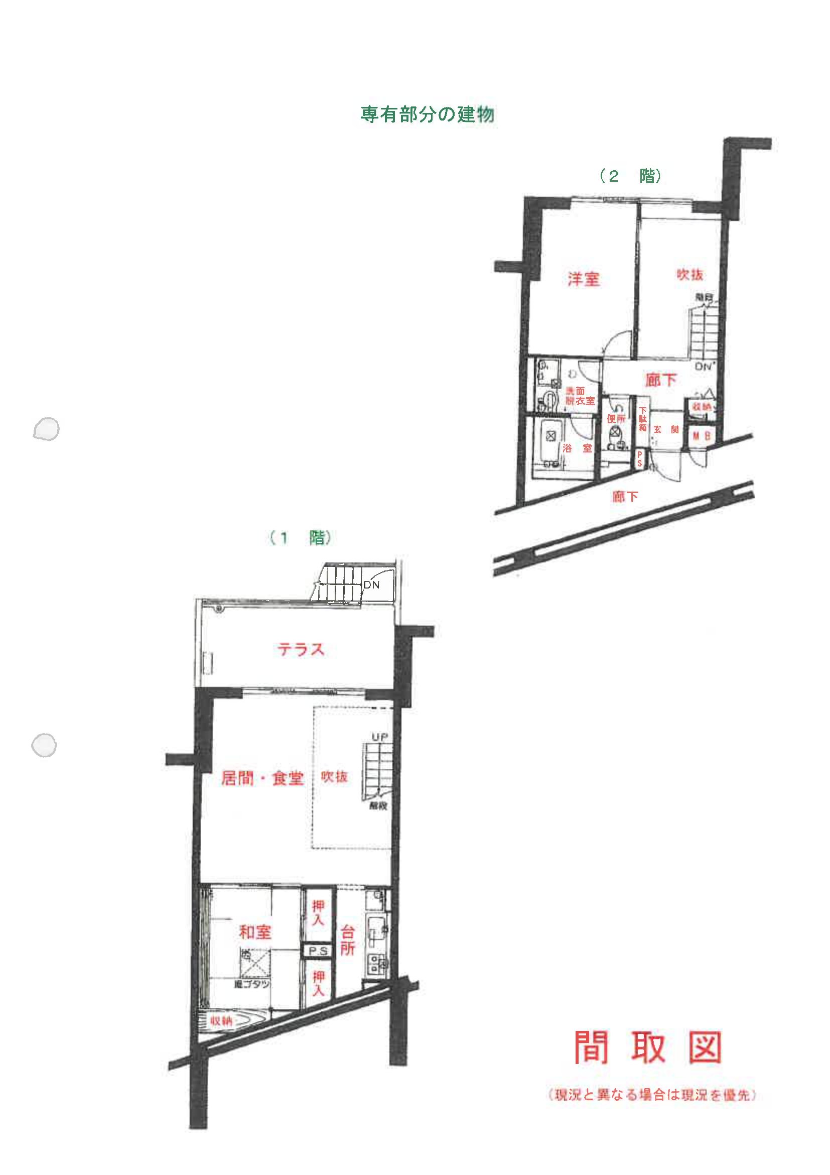
物件の概況
| contact_url | https://www.bit.courts.go.jp/info/info_31831.html |
|---|---|
| 入札期間 | 令和08年05月01日 〜 令和08年05月13日 |
| 開札期日 | 令和08年05月20日 |
| 公示開始日 | 令和08年04月03日 |
| 閲覧開始日 | 令和08年04月03日 |
🤖 AI 総合分析レポート
機能アップデート中
機能は現在開発中です。
次期バージョンでアップデートされる予定です。



















