KeibaiKoubaiFinder
1131
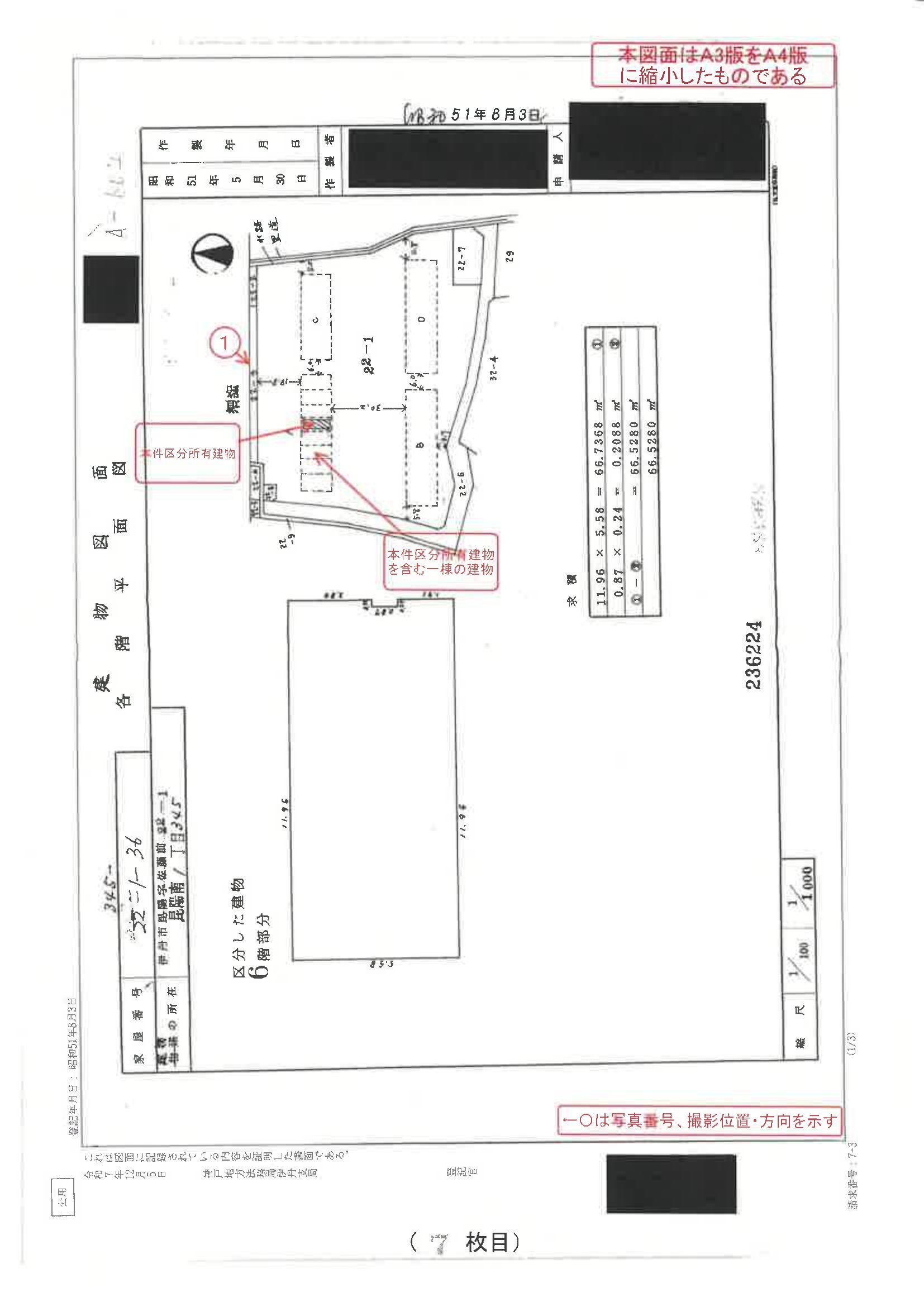
【1,030万円】兵庫県伊丹市昆陽南一丁目 345番地のマンション|神戸地方裁判所尼崎支部 競売物件情報|Keibai Finder