青森県 三戸郡青森県三戸郡南部町大字麦沢字上木戸場 9番5
🚉苫米地 徒歩48分
売却基準価額 (裁判所評価額)
610万円
苫米地 徒歩48分(3.0 km)
北高岩 徒歩56分(3.6 km)
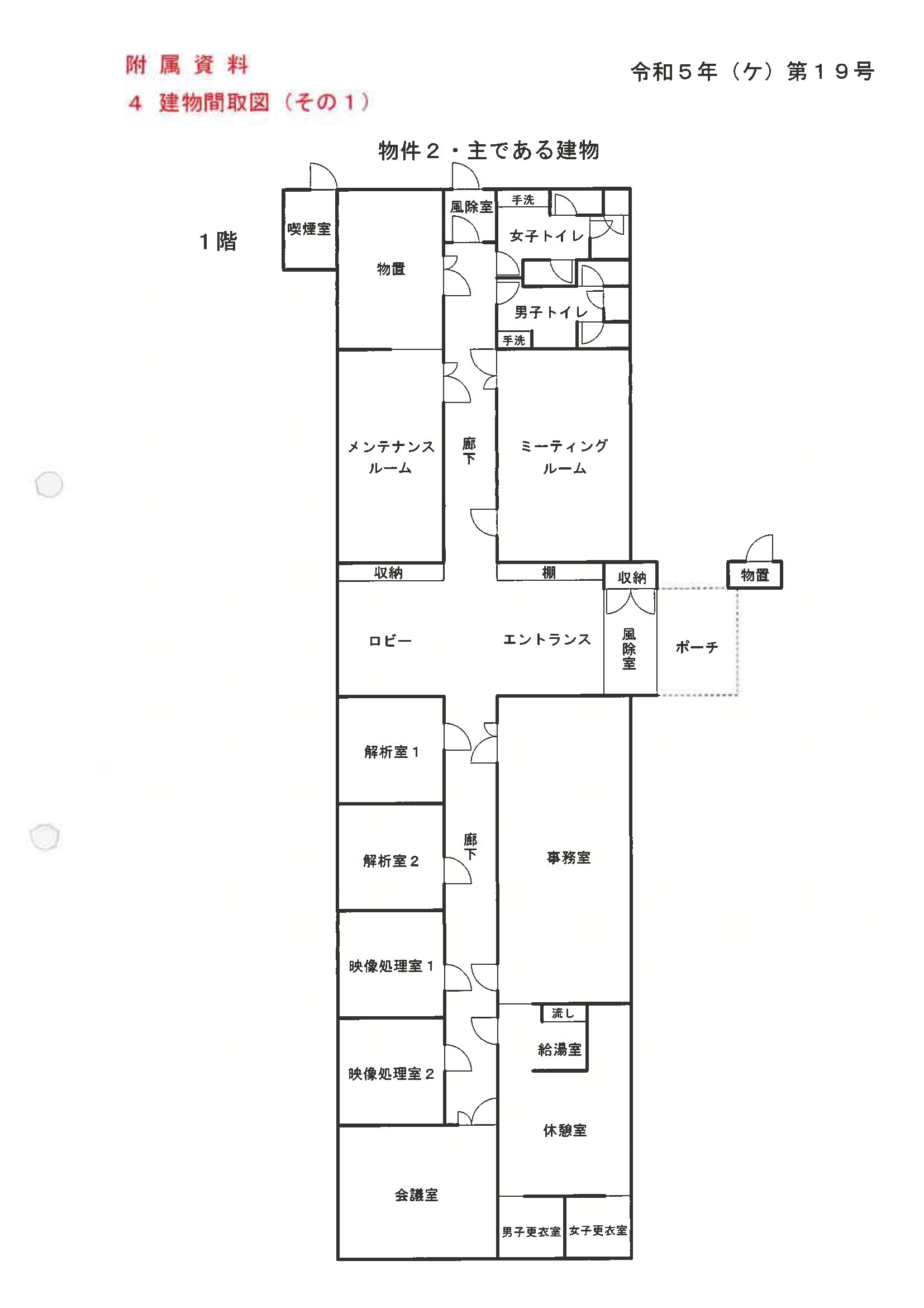
物件の概況
| contact_url | https://www.bit.courts.go.jp/info/info_37632.html |
|---|---|
| 入札期間 | 令和08年06月04日 〜 令和08年06月11日 |
| 開札期日 | 令和08年06月17日 |
| 公示開始日 | 令和08年04月09日 |
| 閲覧開始日 | 令和08年04月09日 |
🤖 AI 総合分析レポート
機能アップデート中
機能は現在開発中です。
次期バージョンでアップデートされる予定です。



















