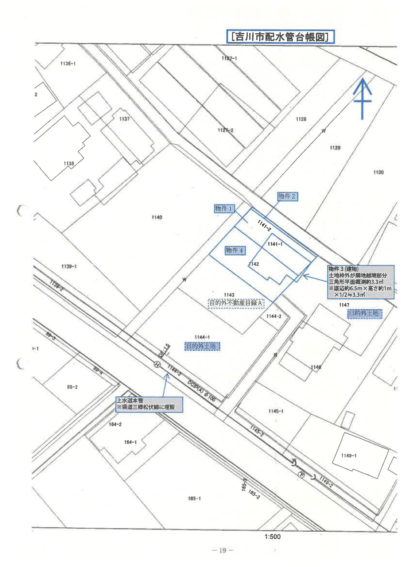
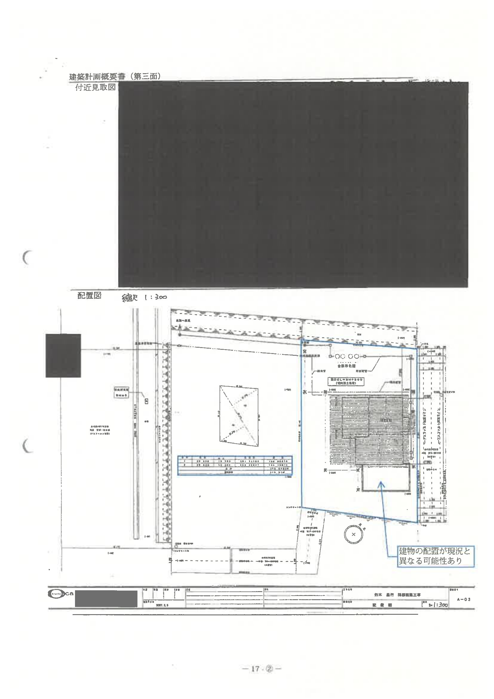
埼玉県吉川市大字関新田字堤通 1141番1
売却基準価額 (裁判所評価額)
物件の概況
| contact_url | https://www.bit.courts.go.jp/info/info_31341.html |
|---|---|
| 入札期間 | 令和08年05月13日 〜 令和08年05月20日 |
| 開札期日 | 令和08年05月27日 |
| 公示開始日 | 令和08年04月21日 |
| 閲覧開始日 |
🤖 AI 総合分析レポート
機能アップデート中
機能は現在開発中です。
次期バージョンでアップデートされる予定です。
埼玉県吉川市大字関新田字堤通 1141番1
売却基準価額 (裁判所評価額)
物件の概況
| contact_url | https://www.bit.courts.go.jp/info/info_31341.html |
|---|---|
| 入札期間 | 令和08年05月13日 〜 令和08年05月20日 |
| 開札期日 | 令和08年05月27日 |
| 公示開始日 | 令和08年04月21日 |
| 閲覧開始日 |
🤖 AI 総合分析レポート
機能アップデート中
機能は現在開発中です。
次期バージョンでアップデートされる予定です。




















